St Pauls Anglican Church, Johannesburg
Loading...
Date
Authors
Eaton, Norman, 1902-1966
Journal Title
Journal ISSN
Volume Title
Publisher
Abstract
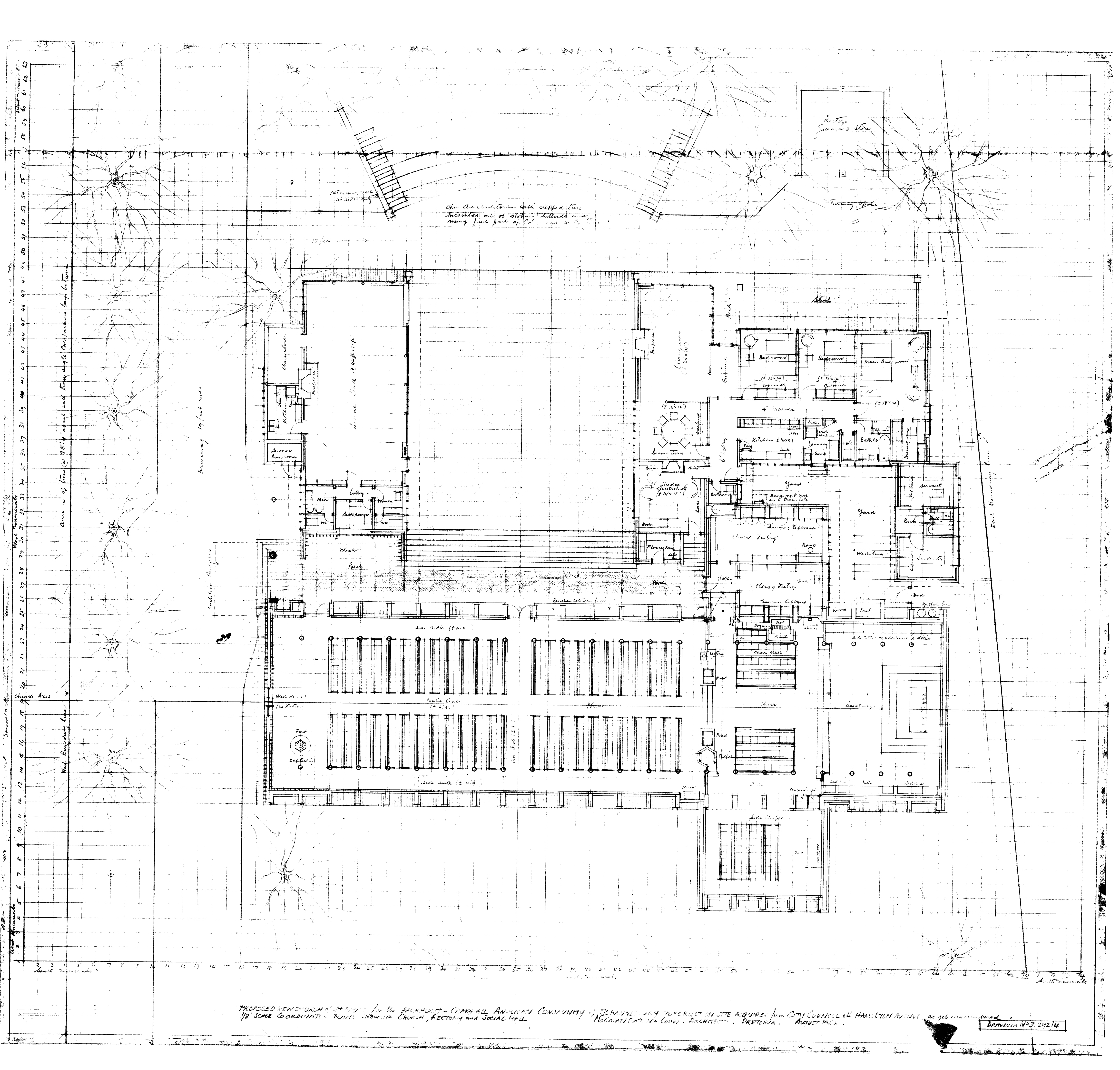
Plan 07512-01 of the new Church of St Paul’s for the Parkhurst /Craighall Anglican Community of Johannesburg, depicting the ground floor side chapel, sanctuary, social hall and courtyard.
Description
600 dpi TIFF scans reduced to 150 dpi JPEG images
Keywords
Architectural designs, Architectural drawings, St Pauls Anglican Church, Churches
