Restoration : Reinet House, Graaff- Reinet
Loading...
Date
Authors
Eaton, Norman, 1902-1966
Journal Title
Journal ISSN
Volume Title
Publisher
Abstract
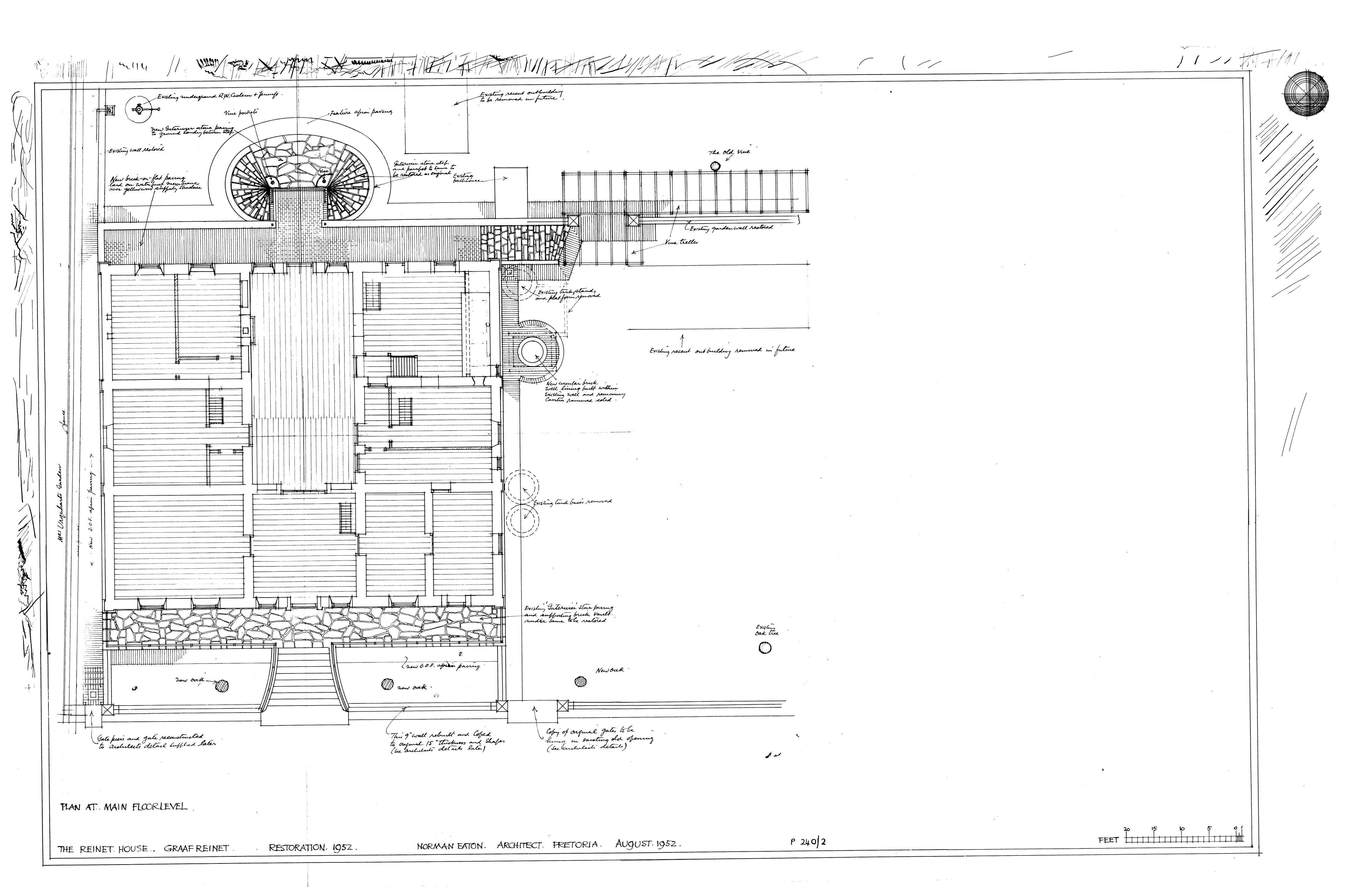
Pencil & crayon drawings, 07257-01, 07257-02, 07257-03, 07257-04 of the restoration of Reinet House, Graaff- Reinet. Detail includes the necked, convex- concave & leg-o-mutton gables, plan of the main floor level and detail of the thatch roofed Cape Dutch house.
Description
600 dpi TIFF scans reduced to 150 dpi JPEG images
Keywords
Architectural designs, Architectural drawings
