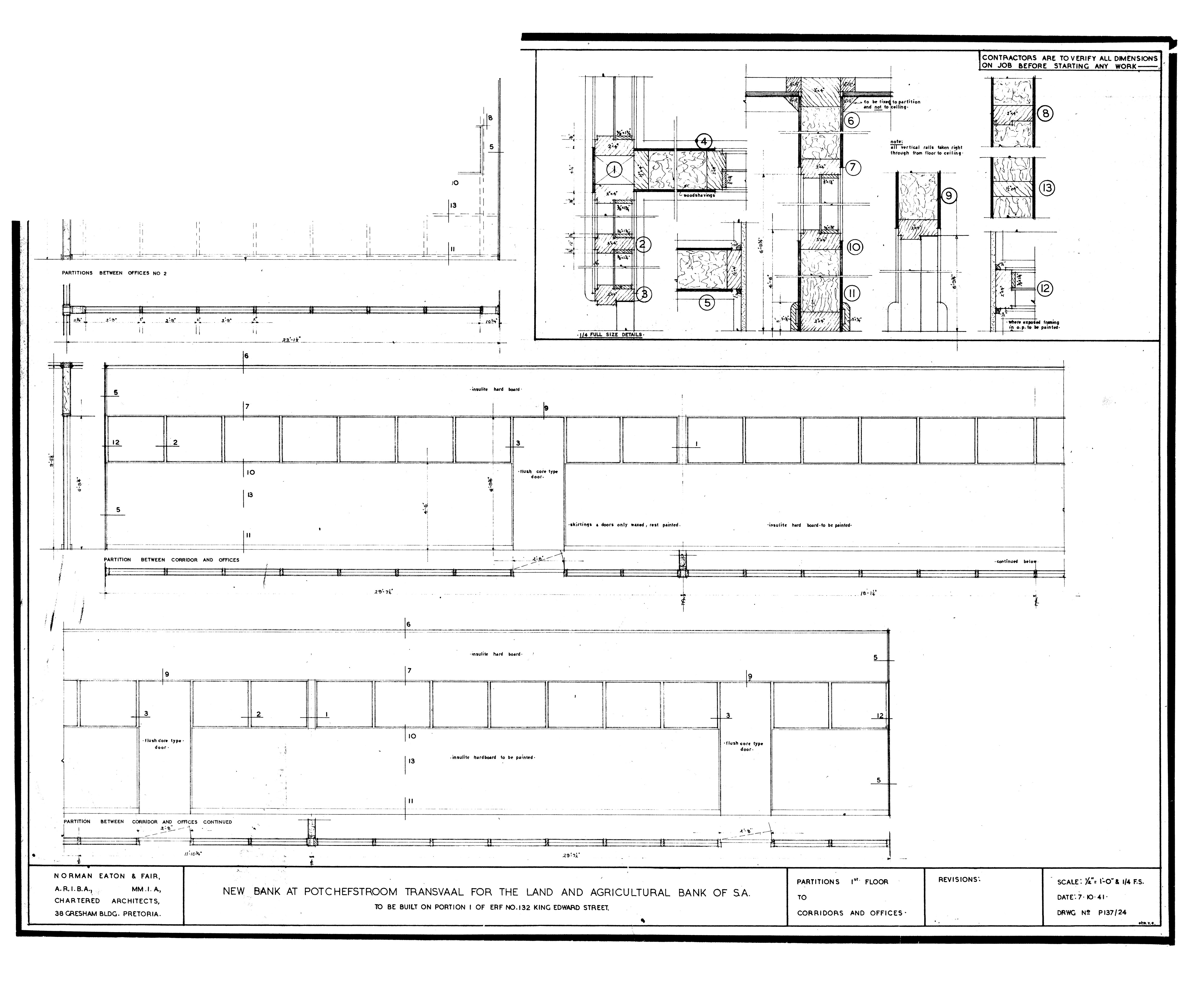
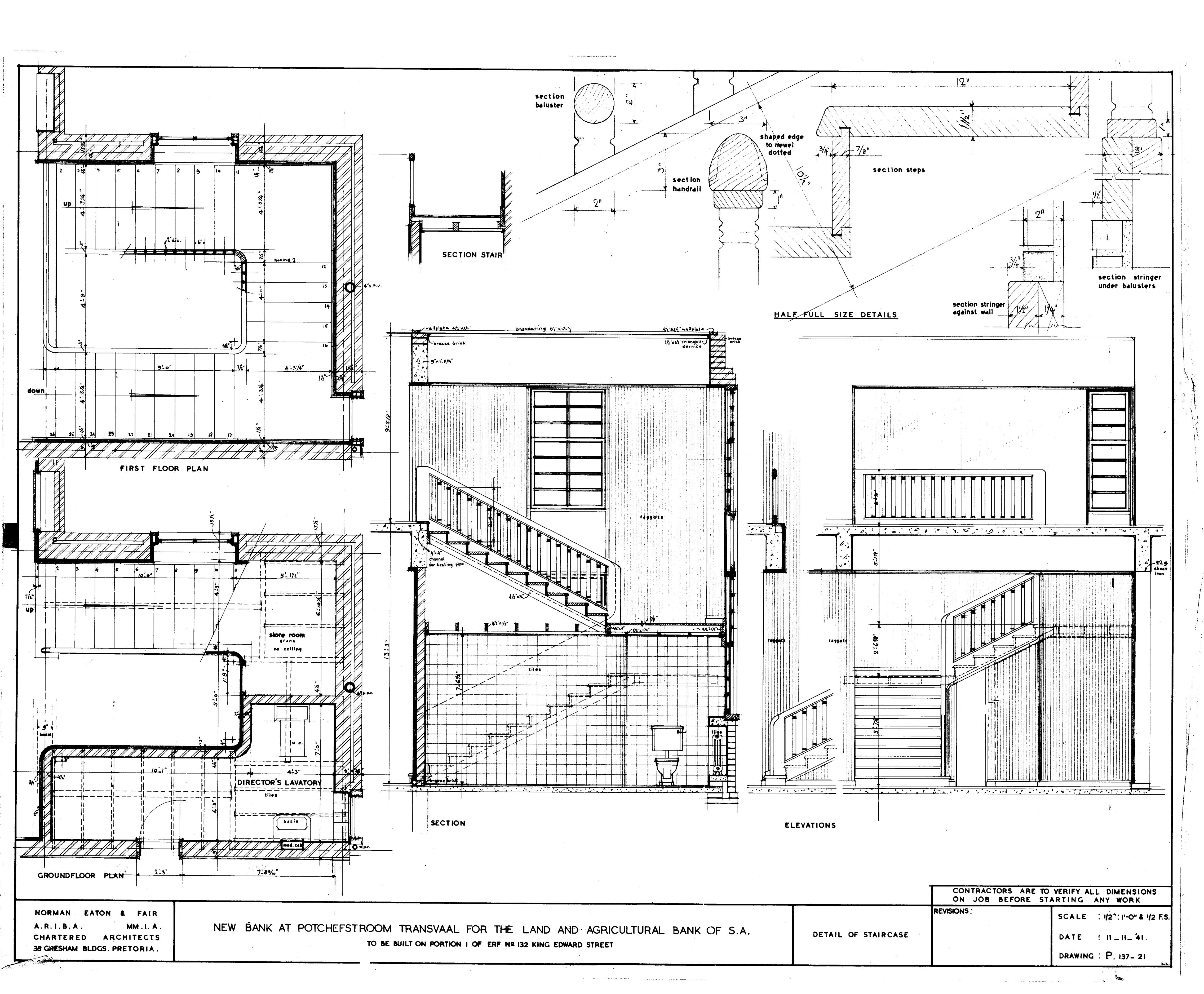
Landbank, Potchefstroom
Loading...
Date
Authors
Eaton, Norman, 1902-1966
Journal Title
Journal ISSN
Volume Title
Publisher
Abstract
5 plans numbered 07080-01 to 07080-04 of the new building for the Land and Agricultural Bank of S.A. in Potchefstroom
Description
600 dpi TIFF scans reduced to 150 dpi JPEG images
Keywords
Architectural designs, Architectural drawings, Landbank
